为加快推进“华为开发者创新中心”建设进程,进一步整合现有校内实践教学资源。3月1日,学校在行政楼会议室开展“华为开发者创新中心”项目进展交流会。学校副校长邹学海、教务处处长陆霞、资产与实验管理处处长耿明华、安全保卫部部长程志明、苏州齐鑫正泰科技有限公司总裁邹瑞等共同出席会议。会议由发展办公室主任马浩主持。
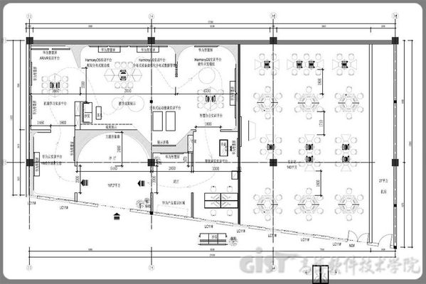
齐鑫正泰公司就“华为开发者创新中心”装修方案向学校做详细介绍,创新中心分为展训实训平台和实训机房两个区域,面积共计200平方左右,总投入300万(企业投资设备、负责装修)。其中,展训实训平台分为HMS全场景应用实训平台、华为云实训平台、机器学习实训平台、AR/VR实训平台、HarmonyOS实训平台、分布式运动健康实训平台等9个平台,基本涵盖华为所有硬件设备;实训机房设有60个机位,后续会根据教学安排,视情况与现有机房进行连接。
教务处、资产与实验管理处等相关部门就学生实训课时及课程、培训、设备等具体情况与公司做详细交流和对接。
邹学海副校长衷心感谢公司对学校实践教学的鼎力支持,并充分肯定了交流会的意义,他强调三点意见:一是发挥各自优势,共同建设好“华为开发者创新中心”;二是形成沟通机制,及时解决问题,推进工作落实到位;三是加强配合、提高站位,努力向省内示范实践教学实训基地迈进。
根据交流会成果,三月上旬,“华为开发者创新中心”将正式动工,预计2个月内完工。




